一、柴油泵房是否必须为独立建筑?
规范:《消水规》5.5.13:当采用柴油机消防水泵时宜设置独立消防水泵房,并应设置满足柴油机运行的通风、排烟和阻火设施。
建议:宜为独立建筑,确有困难可附建于建筑内,并参照柴油发电机房要求布置、分隔。
二、附建泵房防火分隔
规范:《建规》6.2.7;《消水规》5.5.12.3
三处规范均规定不低于2.00h 的防火隔墙和1.50h 的不燃性楼板分隔,开向疏散走道的门,《消水规》要求甲级门,《建规》要求乙级门。按甲级门设计,且直通安全出口。
三、布置楼层
建议:附建柴油泵房宜设在首层,确有困难设于地下一层,且设置在靠外墙部位,当设于地下一层若顶板上为室外场所且便于通风排热时,也可不靠外墙。考虑油箱的存在,应按发电机房要求,不能布置在人员密集场所的上一层、下一层或贴邻。不论是消防泵房还是发电机房,规范均允许条件具备时设在地下二层,宜为独立建筑的柴油泵房不建议设在地下二层。
四、柴油泵房平面布置
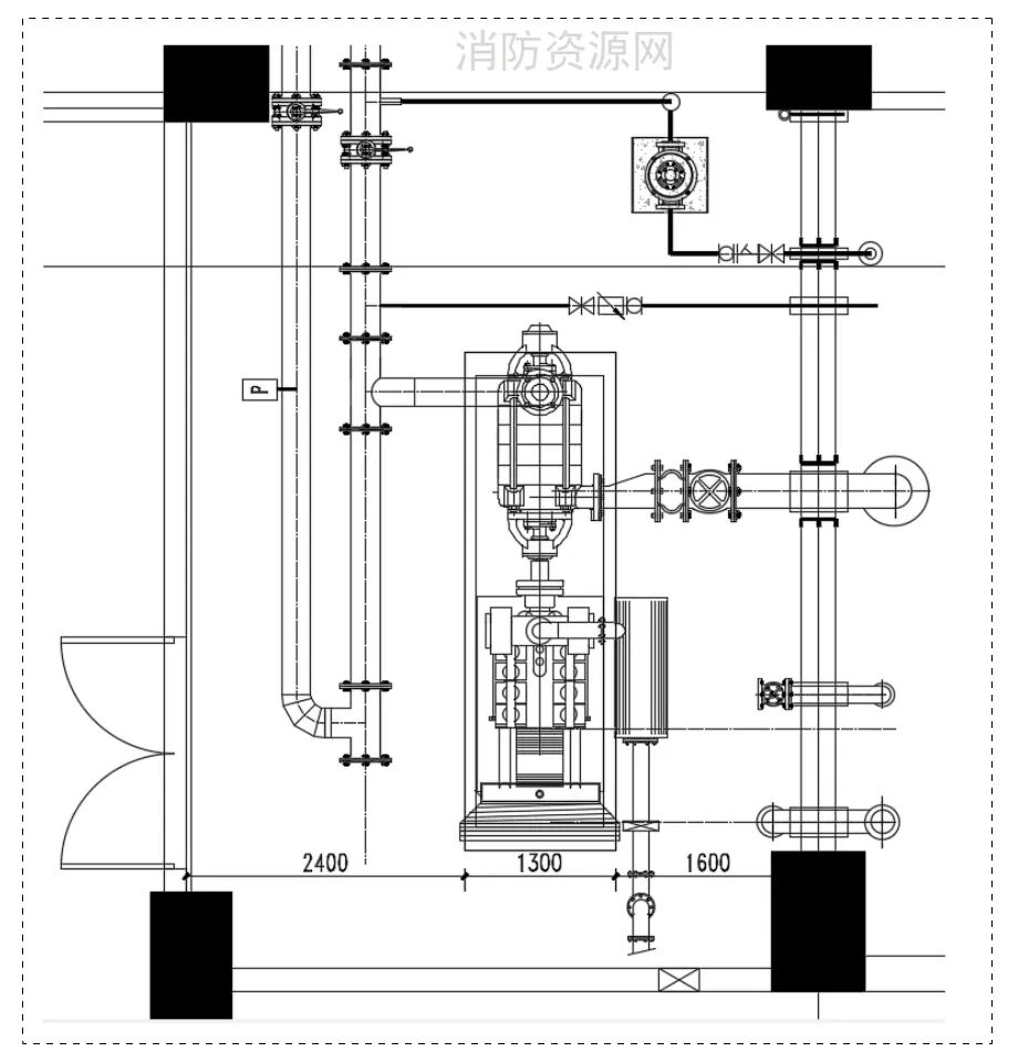
建议:1.柴油泵操作面要求简单,一些柴油泵厂家仅要求700~800的检修宽度即可,有条件可加大检修宽度。《<消防给水及消火栓系统技术规范>实施指南》(赵锂 姜文源等, 2016)建议考虑散热原因加大距离。2.一般将柴油泵布置在端墙处,避免热风吹向其他设备,也便于泵房内气流组织设计。有条件时采用排风管接到直通室外的风井,避免室内空气混合。3.柴油泵可以从地下室运送,柴油泵宽一般小于1.5m,泵房内主通道净宽度应适当加大,至少1.5m。泵房设备入口门宜为1.5m~2m宽。4.当柴油泵散热及尾气排在泵房内时,空间适当加大,同时加强通风。平面参见下图(资料来源:笔者参与设计的印尼某项目水施图纸)

五、泵房净高
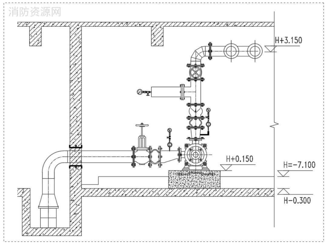
参考规范:柴油发电机房净高要求见《民电规》6.1.3建议:柴油机机组高度与功率有关,400KW以下3米净高即可,由于泵房净高受制于出水管阀门附件的尺寸,建议泵房净高为3.5~4米。参见下图(资料来源:笔者参与设计的印尼某项目水施图纸)

六、消声和减振
观点:柴油泵兼有柴油机和泵的运行噪音、振动。消防泵平时不使用,每周、每月启泵一次,每季度测流量压力,每年测试系统启动,都产生噪音,但时间短,对噪音标准低的建筑,影响小,有条件不与敏感房间毗邻(或上下),与敏感房间毗邻(或上下)时采取惰性基础等措施消声和减振。
七、泵房暖通
规范:《消水规》5.5.9;5.5.13
观点:1.柴油泵房应设置独立的送、排风系统。其送风量应为排风量与柴油机组燃烧所需的空气量之和。2.柴油泵房送、排风系统,应视为消防设施,供电需按与服务建筑相同的消防负荷级别,柴油泵房送、排风系统失效等同于柴油泵失效。建议:1.《消水规》5.5.9.2规定泵房通风宜按6次/h设计,当柴油泵直接散热到泵房内时不适合,应根据散热量、混合空气允许最高温度与补风(室外空气)温度差计算。补风空气温度可按夏季通风室外计算温度,采用历年最热月14时的月平均温度的平均值。泵房内混合空气最高温度不宜高于40℃。最高散热量可由产品提供,或者参考《全国民用建筑工程设计技术措施-防空地下室》(2009年)的计算公式和参数。

2.泵房气流组织需要合理设计,避免短路。柴油机散热排气没有通过风管连接风井时,排风口应在散热器附近。3.有条件时,柴油机机头散热器不散热到泵房,建议通过风管接到室外或直通室外的风井,避免室内混合,降低风量,此时泵房通风宜按6次/h设计。4.条件允许时可采用远置冷却,即就是通过循环泵将散热器外置(室外等处),远置冷却时,泵房通风宜按6次/h设计。5.寒冷及严寒地区,需设置预热、采暖措施。采暖温度不应低于10℃,但当无人值守时不应低于5℃。
八、泵房环境卫生
建议:为了便于保持泵房的环境清洁,可在机组基础的中部布置凹槽,在机组基础四周布置浅沟,以便于冲洗污水和柴油、机油。泵房应设有洗手盆和落地洗涤槽。
九、是否必须强调采用丙类柴油?
观点:《建规》5.4.2严禁民用建筑储存甲乙类物品,-35、-50号等型号柴油闪点低于60℃,属于乙类可燃液体,虽然我国大部分地区不需要使用闪点低于60℃的柴油,但避免附建柴油泵房误使用乙类可燃液体,宜在设计说明及采购要求明确。
十、柴油泵房是否设置排烟设施?
观点:电动机消防泵泵房既无可燃物无人停留,人员仅仅是巡查和维保,按《建规》8.5.4不需设排烟设施。柴油泵房无人停留存在油箱,按《建规》8.5.4也不需设排烟设施。但柴油泵房已具备散热通风系统,建议利用已有的散热通风系统兼作排烟设施。规范:《建规》8.4.1条文说明 :除个别火灾急险性小的部位,如卫生间、泳池、水泵房等外,需要在该建筑内全部设置火灾自动报警系统。
十二、柴油泵、电泵泵组自动控制要求
针对柴油泵、电泵泵组的自动控制,缺乏成熟和统一的做法,国家标准图集16D303-3 《常用水泵控制电路图》中,也无此控制电路图,设计成果也没有提供控制要求,技术人员对自动控制也缺乏研究。泵组的控制器还可以按GB/T 21208-2007《低压开关设备和控制设备 固定式消防泵驱动器的控制器》(简称《控制器》)要求配置,设计成果需要明确柴油泵、电泵之间的控制关系。建议:1.与电动机消防泵控制箱相互独立,且柴油泵必须作为电动机消防泵的备用泵,不能互为备用。2.灭火系统中的启泵信号直接接入电动机消防泵控制箱,不宜同时接入柴油泵控制箱。电动机消防泵控制箱的启泵故障信号“与”灭火系统中的启泵信号作为柴油泵控制箱的自动开机启泵信号,线路接入柴油泵控制箱。同时,消防控制室的联动控制盘,将电泵故障信号“与”灭火系统中的启泵信号作为柴油泵联动控制启泵信号,控制盘也设远程人工启泵(柴油泵)功能。3.柴油泵控制箱的启泵故障信号接到消防控制中心报警,接到报警后权限人员迅速赶到泵房,应急强制启动柴油泵。同样按《消水规》11.0.12 要求,确保报警后5.0min内正常工作。非停电状态可以首先尝试应急强制启动电泵。4.柴油泵、电泵混合泵组的柴油泵控制箱和电泵控制箱必须机械电气连锁,禁止并采取措施防止两泵并联运行。两泵并联运行,两泵特性曲线不一致易导致小泵小流量运行甚至0流量运行。另外,两泵并联运行,扬程相差不大,易造成止回阀失灵,柴油泵或电泵反转,柴油泵反转导致柴油机反转。柴油机反转,由排气管进气、消音器内积存的积碳粉末吸入气缸,会加剧气缸与活塞及活塞环的磨损;同时机油泵反转,不能向润滑部分输送机油,造成烧瓦抱轴事故,甚至烧毁爆缸。所以防止事故发生,必须强制要求机械电气连锁,防止两泵并联运行。
十三、泄压阀
建议:柴油泵必须设置泄压阀组,且泄压阀泄压能力必须大于电动机泵,至少再加大一级管径,且应设两组,一套泄压阀失灵还有第二套泄压。电动机消防泵在零流量时压力最大1.4H,但柴油泵有可能超速运转,假如柴油泵额定转速时其零流量时最大压力1.4H,由于转速与扬程平方成正比,当柴油机最大转速120%尚未停机之前,增加20%转速可能增大44%的扬程,柴油泵零流量时压力远大于1.4H。甚至在超速断路装置失灵情况下,超压超流量更严重。柴油机超速时,流量和压力同时上升,泄压阀过小时,即使开启出流,系统降压有限,所以泄压阀需加大。
十四、止回阀
建议:柴油泵必须选用质量可靠止回阀,且在止回阀前设压力开关,压力高于水池最高水位时报警,目的是防止柴油机反转造成损失。同理,柴油泵不适合应用于消防高位水箱和消防水池水池水位差较小的项目,至少高差10米以上。压差太小,易造成止回阀失灵,柴油机反转。缓闭止回阀是否会造成损害,或许时间短没有问题,需要实验证实,尚无多次实验得出结论之前,建议谨慎使用。
十五、维护保养
建议:规范缺乏对柴油机部分提出维保要求,比如检查柴油机各组成配件,检查积碳、润滑油、冷却液等,建议增加此工作内容。
探讨建议
探讨一、一类高层附建柴油泵房是否设置自动灭火系统:
观点:1.《建规》8.3.3一类高层及以上建筑内的纯电泵消防泵房设喷淋与否有不同看法,个人认为不适合用水灭火场所不设,设了反而影响泵房使用可靠性,另外泵房失火也难以保证消防泵启动灭火。柴油泵房由于存在可燃物建议设置自动灭火系统。2.不宜用喷淋。柴油泵房不宜参照发电机房设喷淋,柴油泵房存在柴油可燃物,又存在电动机、控制柜等电气设备,设喷淋后电机、控制箱需要保护(参见石峥嵘老师专题文章:《柴油发电机房、锅炉房,灭火系统的选择及应用》)。柴油发电机房采用喷淋是符合安全度原则,不考虑再三出现意外情况下对柴油发电机房进行灭火。柴油泵房设喷淋则违反安全度原则,柴油泵房发生火灾,柴油泵、电泵都可能同时无法使用,喷淋系统难以保证生效,除非柴油泵、电泵分设于不同消防泵房。另外,油类火灾最理想的灭火剂是泡沫,水不合适,喷水后,燃烧的油上浮随水流淌扩大火灾。3.慎重采用全淹没气体灭火系统。柴油机散热器常用冷却风扇降温,直接散热到泵房,除了远置冷却,泵房可以密闭外,但远置冷却很少采用,其他降温方式,即使柴油机停机也不马上停止冷却。消防水池往往与泵房相通,泵房密闭问题较为复杂,如采用全淹没气体灭火系统,应处置好防护区的密封性问题。4.宜用细水雾灭火系统。细水雾适合油类火灾且适合电气设备场所,适合全淹没也适合局部应用,即使是全淹没系统且开口多不易密闭,仅需要在开口上方增设喷头。《雾规》没有消防泵房的灭火参数要求,可参照发电机房的相关规定,且由于开口多,全淹没系统设计持续喷雾时间建议提高到30min,当所有开口均能在灭火启动同时关闭且设置油箱间,仍按发电机房采用20min。
可采用泵组式系统,但泵组所在位置应与柴油泵房进行防火分隔或设于其他房间。没有分隔,如同喷淋系统一样,泵房火灾可能影响灭火系统启用。若采用瓶组式,可直接设在泵房内。
问题:1.《消防泵》与《消水规》两者规定不一致。前者要求燃油箱有效容积至少保证4h。后者要求有效容积按1.5L/kW配置设备供应商按产品标准生产并取得认证,提供合格产品,油箱容积基本固定,一般产品柴油泵、油箱不分设(见下图,图片来源:百度搜索),不便于加大油箱。若设计按《消水规》5.1.8.5要求定购产品,设备供应商需要调整产品,又产生调整后的产品与认证产品不符的问题。2.《消水规》5.1.8规定,存在不能满足三小时用量的风险。柴油泵一般功率越大效率越高,常用泵单位耗油量约0.3~0.35L每千瓦时(高于发电机),如100KW柴油泵,3小时100L左右。若按1.5L/kW配置,油箱容积150L,柴油储量最小50%时,只有75L,不能满足三小时用量。3.柴油发电机日用油箱一般储存8h用量,最不利时50%的储量还能满足4h,加油周期长。柴油泵本来油箱容积小,加油频率大增加的人工成本远大于设备成本,建议参照发电机储存8h用量。尽量采用分体式油箱,增设油箱间,提高储量,既保证灭火时间同时节省维保费用。

观点:目前没有不许柴油泵尾气管直接排至泵房内的要求,但存在风险,影响灭火期间管理人员进入泵房应急启动以及处理紧急状况。建议:有条件时建议排气管须接至室外或烟井,排气管及烟井不宜过长,否则排气背压高,尾气排放乏力,影响使用。限制泵房设置楼层,也有方便尾气排放的目的。尾气排气管由厂家设计计算,建筑设计单位应预留土建条件(如预埋钢套管、预留土建井道等)和足够安装空间。
探讨四、柴油泵是否能自动停泵:
规范:《消水规》11.0.2:消防水泵不应设置自动停泵的控制功能。首先,虽然柴油泵具备自动保护停机功能会带来自动控制方面出现故障造成停机停泵的风险,但柴油泵不同于电动机消防泵,电动机消防泵都是主泵且互为备用,柴油泵完全是备用泵,在电动机消防泵停电或其它原因失效后动作,在安全度原则上没必要考虑再三意外情况。因而柴油泵可以降低运行保证要求,自动保护应参照同为备用身份的柴油发电机。《民电规》6.1.10.2只要求发电机不需备用功能时自动停机:“当市电恢复供电后,应自动切换并延时停机”,虽没有提倡故障自动停机,也没有限制。但低自动化程度的发电机设备逐渐淘汰,自动化柴油发电机组得到全面应用,自控停机、自动保护停机又是GB/T4712-2008《自动化柴油发电机组分级要求》中最低一级的最基本自动化要求。其次,电泵不自动停泵还能继续供水灭火,柴油泵即使不能自动停机停泵,最终也不能运行,不能正常供水,并可能造成严重事故,更重要的是有可能造成柴油泵完全损坏,失去最后由人工启动灭火的机会。电泵不自动停泵有三种情况,一是不设过载保护,不设长延时脱扣器;二是热继电器信号仅报警,不断开接触器。三是消防水池最低水位仅报警,不停泵。第一、二种情况消防泵可继续运转,保证消防用水的可靠供给。
柴油泵不自动停泵,不能继续保证系统运行,只有带来危险。
非消防用柴油机泵组自动停机有下列情况:三次启动不成功停机、水温高保护停机、油压低保护停机、燃油油位低保护停机、电池故障保护停机、水池低水位保护停机等功能。机组三次启动不成功、电池故障不停机也没多大用处,蓄电池也无法提供多次启动电力(蓄电池组的容量应能满足6次启动循环的要求),不自动停机可能耗尽电力,造成最后启泵机会--人工应急手动启动无法进行;燃油油位低不保护停机,没油还能怎么用?水温高、油压低不保护停机,可能带来事故,也不能保证供水。当然,保护停机的控制参数可适当加大,如燃油油位低保护停机,可以在油箱全空才停机。再次,对《消水规》11.0.2 “消防水泵不应设置自动停泵的控制功能”的理解,个人认为是指消防系统的控制功能中不能出现“设置自动停泵的控制功能”,而不是产品本身不能自动保护停机。否则,电泵的短路保护,瞬时脱扣器动作导致电泵停电停泵,以及柴油泵超速断路装置动作停机停泵,都与《消水规》11.0.2矛盾。灭火期间消防泵不能轻易停泵,是消防泵的目标,为实现目标可以牺牲消防泵,既不能实现目标又损坏消防泵的措施是不可取的,因此柴油泵应根据自身特点另行制定自动停泵保护要求。